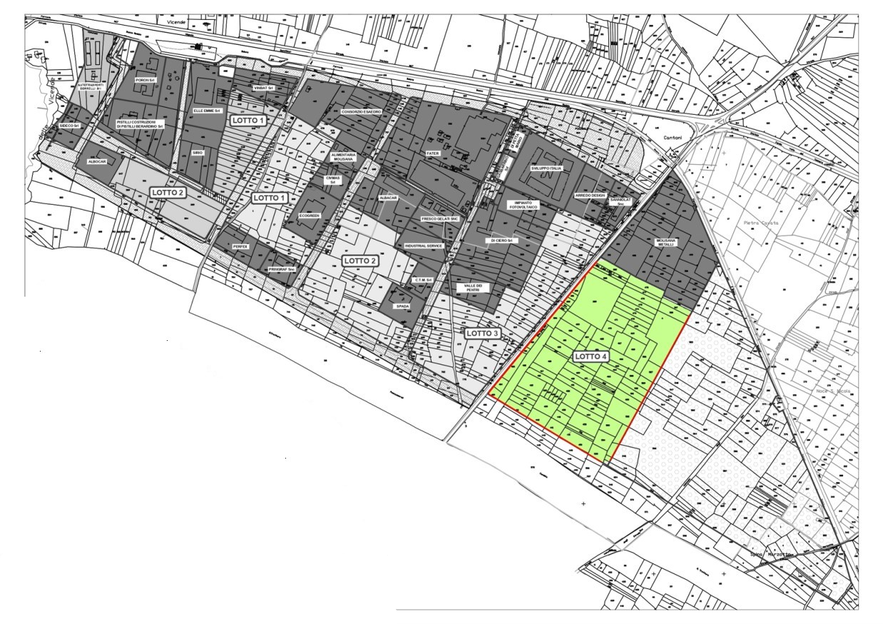
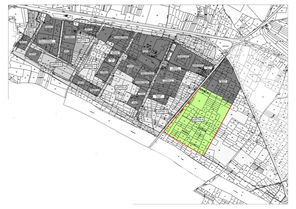
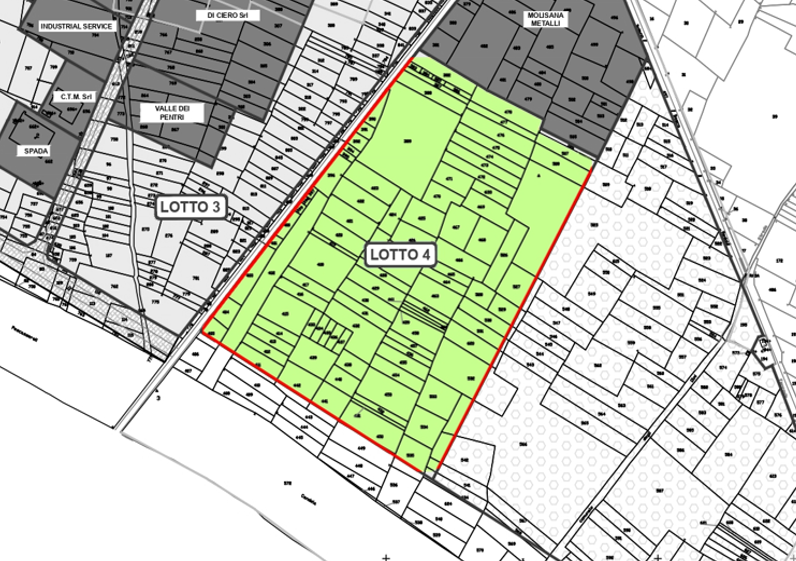
Campobasso - Campochiaro
Greenfield
Informazioni in evidenza
200.000 mqArea totale
30,00 %Indice di copertura massimo
12 mAltezza massima consentita
Posizione geografica
| Regione | Molise |
|---|---|
| Provincia | Campobasso |
| Comune | Campochiaro |
Posizione Molise
Caratteristiche del sito
| Denominazione area industriale | Consorzio per lo Sviluppo Industriale di Campobasso-Bojano |
|---|---|
| Area totale | 200.000 mq |
| Indice di copertura massimo | 30,00 % |
| Altezza massima consentita | 12,00 m |
| Modalità acquisizione | Acquisto |
| Area in Zona Economica Speciale | Si |
| Area in Zona Logistica Semplificata | No |
| Area in Zona Franca Doganale | No |
| Area di crisi industriale | Si |
Infrastrutture e connessioni
| Distanza dalla più vicina autostrada | 70,00 km |
|---|---|
| Distanza dalla più vicina stazione ferroviaria passeggeri | 0,50 km |
| Distanza dal più vicino porto industriale/commerciale | 80,00 km |
| Distanza dal più vicino aeroporto | 130,00 km |
| Distanza dal più vicino terminal ferroviario merci | 120,00 km |


