Aosta - Pont-Saint-Martin
Greenfield
Informazioni in evidenza
2.752 mqArea totale
50,00 %Indice di copertura massimo
10 mAltezza massima consentita
Posizione geografica
| Regione | Valle d'Aosta |
|---|---|
| Provincia | Aosta |
| Comune | Pont-Saint-Martin |
Posizione Valle d'Aosta
Caratteristiche del sito
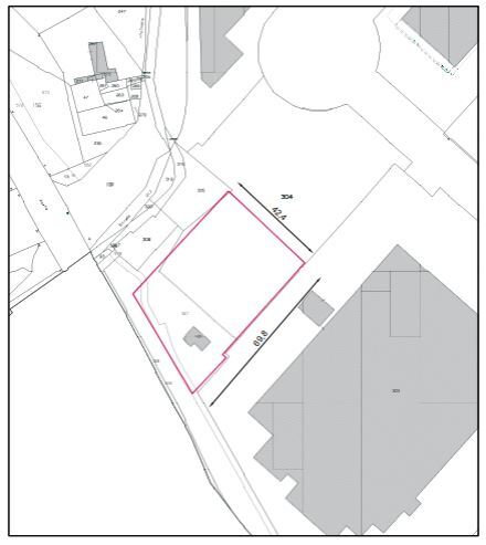
| Denominazione area industriale | Area industriale Ex-Illsa Viola |
|---|---|
| Area totale | 2.752 mq |
| Indice di copertura massimo | 50,00 % |
| Altezza massima consentita | 10,00 m |
| Modalità acquisizione | Affitto |
| Area in Zona Economica Speciale | No |
| Area in Zona Logistica Semplificata | No |
| Area in Zona Franca Doganale | No |
| Area di crisi industriale | No |
Infrastrutture e connessioni
| Distanza dalla più vicina autostrada | 0,85 km |
|---|---|
| Distanza dalla più vicina stazione ferroviaria passeggeri | 1,70 km |
| Distanza dal più vicino porto industriale/commerciale | 198,00 km |
| Distanza dal più vicino aeroporto | 68,50 km |
| Distanza dal più vicino terminal ferroviario merci | 86,70 km |

