Aosta - Aosta
Greenfield
Informazioni in evidenza
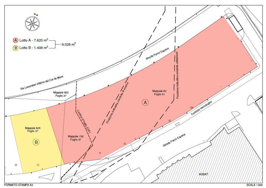
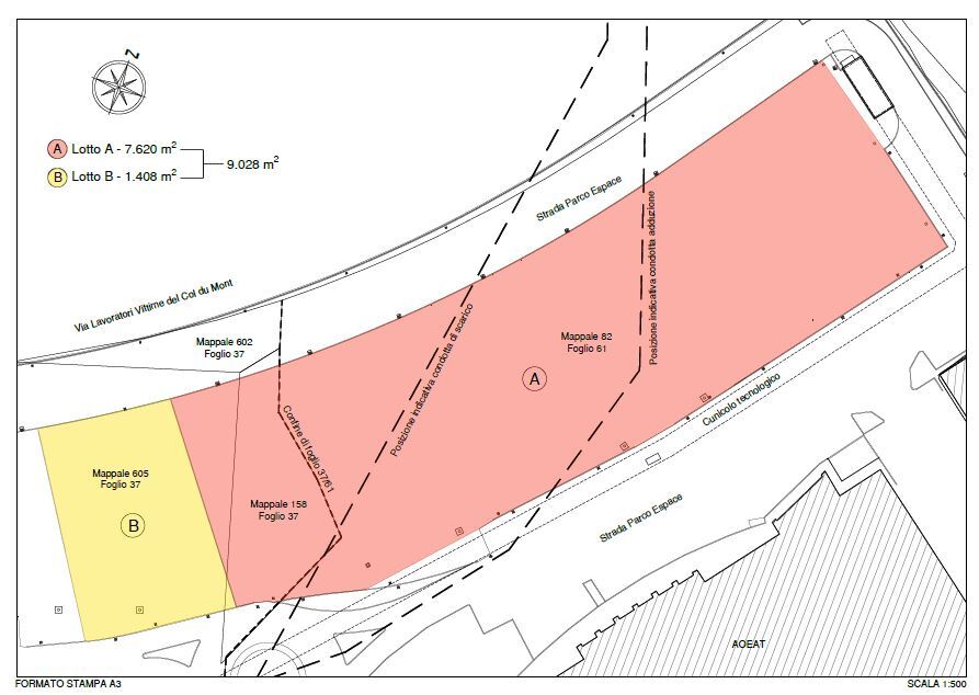
9.028 mqArea totale
87,00 %Indice di copertura massimo
15 mAltezza massima consentita
Posizione geografica
| Regione | Valle d'Aosta |
|---|---|
| Provincia | Aosta |
| Comune | Aosta |
Posizione Valle d'Aosta
Caratteristiche del sito
| Denominazione area industriale | Area Espace Aosta |
|---|---|
| Area totale | 9.028 mq |
| Indice di copertura massimo | 87,00 % |
| Altezza massima consentita | 15,00 m |
| Modalità acquisizione | Affitto |
| Area in Zona Economica Speciale | No |
| Area in Zona Logistica Semplificata | No |
| Area in Zona Franca Doganale | No |
| Area di crisi industriale | No |
Infrastrutture e connessioni
| Distanza dalla più vicina autostrada | 8,50 km |
|---|---|
| Distanza dalla più vicina stazione ferroviaria passeggeri | 2,70 km |
| Distanza dal più vicino porto industriale/commerciale | 295,00 km |
| Distanza dal più vicino aeroporto | 116,00 km |
| Distanza dal più vicino terminal ferroviario merci | 126,00 km |

